
Features of Single Effect Evaporator:
1. Simple structured, convenient operation and small Foot Print.
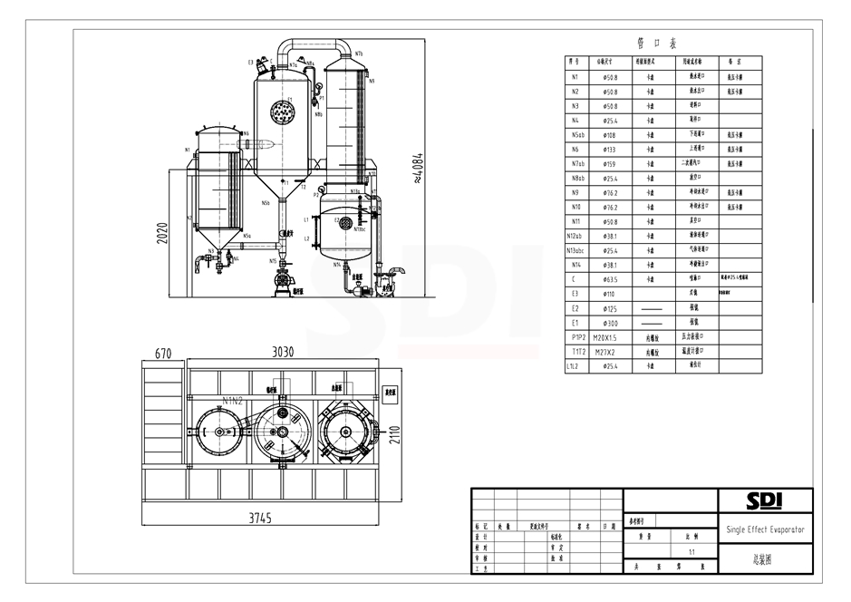
2. The equipment is mainly composed of a Heater, a separator, a Condenser, a Water Collecting Tank etc.
3. The equipment can be in Manual, Semi-Automatic and Full Automatic.
4. Various choices of materials for the equipment, depending on customer requirements.
5. Both Steam and Hot Water are applicable for Heating.
6. CIP Applicable and blind Angle Free
Evaporator Classification:
There are various kinds of classifications for the product, but normally the categories are
1. Film Falling Evaporator.
2. Film Rising Evaporator.
3. Forced Circulation Evaporator.
The design of Single Effect Evaporator and the Classification Choosing shall be as per the specific
Processing Application and the Processing Liquids' Properties.
Applications:
Dairy, Honey, Glucose, Organic Acid, VC, Sorbitol, Pharmaceutical, Herbs Extraction, Xylose, Pigments, Protein, Chemicals, Bio-Products etc.